LOADING

11 Fraser Dr Breton, Alberta T0C 0P0

$35,000

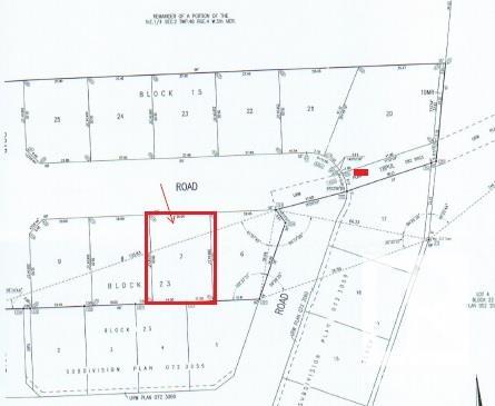
DEER CROSSING ESTATES. Lot 7 located in the Village of Breton, approx. one hour SW of Edmonton . No time requirements on building so, when you're ready, build your dream home in this beautiful new subdivision in the Village of Breton which combines extensive retail, professional & community services with peaceful rural lifestyle living. An easy commute to Drayton Valley, Leduc/Nisku, and the international airport, Breton is located within 1/2 hr drive of both Pigeon Lake, Buck Lake, and a variety of area golf courses, providing recreational enjoyment for every season of the year. GST is included in the price. (id:42336)

Property Details

MLS® Number E4450062
Property Type Vacant Land
Neigbourhood Breton
Amenities Near By Schools, Shopping
Features See Remarks, Flat Site

Building

Type No Building

Land

Acreage No
Land Amenities Schools, Shopping
Size Irregular 936
Size Total 936 M2
Size Total Text 936 M2

https://www.realtor.ca/real-estate/28661344/11-fraser-dr-breton-breton

Interested?

Contact us for more information


Generating Captcha

Terence Barg
Associate

(780) 621-6767
(780) 628-0577
Your Favourites

 

No Favourites Found